Az értékesítő:
Rákosné Tímea
+36 70 412 5026

Eladó családi ház Hajdúsámson, 63 900 000 Ft, 76 négyzetméter

63 900 000 Ft
családi ház, 76 négyzetméter
Egész szobák:
4
Ingatlan állapota:
Kitűnő
Azonosító:
11575350
Értékesítés típusa:
eladó
Ingatlan típusa:
családi ház
Jelleg:
Ikerház
Település:
Hajdúsámson
Alapterület:
76
Telekterület:
297
Ár:
63 900 000 Ft
Terasz:
Nincs
Erkély:
Van
Melléképület:
Nincs
Pince:
Nincs
Parketta:
Nincs
Kábel TV:
Nincs
Telekterület típusa:
négyzetméter
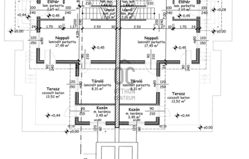
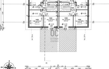
Sámsonkertben építés alatt – új, tágas 4 szobás ház várja Önt! AKCIÓS áron január 15-ig! Most egy igazán különleges lehetőséget kínálunk számodra Sámsonkert városrészben. Ez az új építésű ház nem csupán egy ingatlan, hanem egy életstílus, amely tökéletesen illeszkedik a modern fiatalok igényeihez. Az ingatlan alapterülete 80 négyzetméter, amelyben négy tágas szoba és két fürdőszoba található. A terasz mérete 12,47 négyzetméter, ahol a reggeli kávédat vagy a barátaiddal eltöltött estéidet élvezheted a friss levegőn. A házban, a megújuló hőszivattyús fűtési rendszernek köszönhetően nemcsak gazdaságos, hanem környezetbarát megoldást is kínál. A klímaberendezés pedig biztosítja, hogy a nyári hónapokban is kellemes hőmérsékletet varázsolhass otthonodba. Az ingatlan környezete csendes és biztonságos, ideális helyszín a nyugodt hétköznapokhoz és a baráti összejövetelekhez. A környék adottságai lenyűgözőek: a közlekedési lehetőségek kiválóak, hiszen autóval könnyen megközelíthető a város központja, ahol számos bolt, étterem és szórakozási lehetőség vár rád. A tömegközlekedés is jól kiépített, buszmegálló 5 perc sétára található így a város többi részéhez is könnyedén eljuthatsz. A lakás jellemzői: - fémszerkezet teherhordó falakkal és hanggátló elválasztó téglafalakkal épült - nettó lakótér 76 m2 mely magában foglal 4 lakószobát, 2 fürdőszobát és nappalit külön - a lakásokhoz osztatlan közös megosztással került kialakításra a saját telekrész, ezen ingatlanhoz okirat szerint 297 m2 csatlakozik - a lakások külön mérő órákkal felszereltek (Villany óra, külön hőszivattyú, fúrt kút külön szivattyúval, lakásonként 10m3-es zárt szennyvíz tározó és klíma berendezés 3,5 kW kapacitással) - a lakásokban mindenütt padlófűtés van kiépítve - nyílászárók 3 rétegű üvegezéssel ellátott műanyag ablakok, a tetőtérben fa nyílászárók - padlástérben 30 cm szigetelés, a homlozaton 15 cm hőszigetelés készült. - átadás: 2026 március - alapterület 76 m2+ 3,45 m2 kazánház+ 12, 47 m2 terasz Az ingatlan babaváróval és CSOK+-al vásárolható! Az Otthon Start hitel 2026. januártól igényelhető az ingatlanra! Ha szeretnél többet megtudni erről a kivételes ingatlanról, vagy kérdéseid lennének a vásárlással kapcsolatban, bátran keresd fel a hirdetésünket! Bizalommal állunk rendelkezésedre, hogy segítsünk megtalálni álmaid otthonát vagy befektetési lehetőségedet. Ne hagyd ki ezt a páratlan ajánlatot, hiszen ez a lehetőség gyorsan el fog tűnni a piacon!
https://ingatlanok.hu/elado/haz/hajdusamson/64-millio-ft;76-negyzetmeter;4-szoba;nincs-megadva-futes/11575350