Eladó iroda/üzlethelyiség Tokaj 290 000 000 Ft

Leírás

Tokaj a legnevezetesebb, világszerte ismert borvidékünk, borkülönlegessége, a tokaji aszú.
Amikor XIV. Lajos megkóstolta „vinum regum, rex vinorum” elnevezéssel illette, azaz „királyok bora, borok királya”.

Az UNESCO Világörökség Bizottsága a Tokaj-hegyaljai történelmi borvidéket, mint kultúrtájat 2002-ben felvette a világörökségi listára.

Tokaj Hegyalján, a Tokaji hegy lábánál, bevezetett, jelenleg is üzemelő komplexum eladó, mely az alábbi egységekből áll:

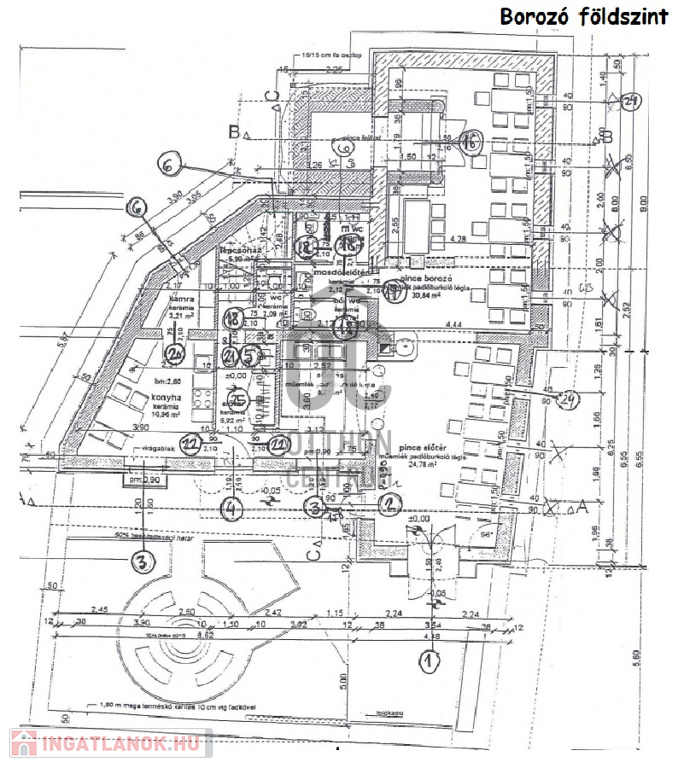
BOROZÓ/GALÉRIA (földszint):
-50 fő befogadására alkalmas
-vendéglátó egység
-2004-es építésű

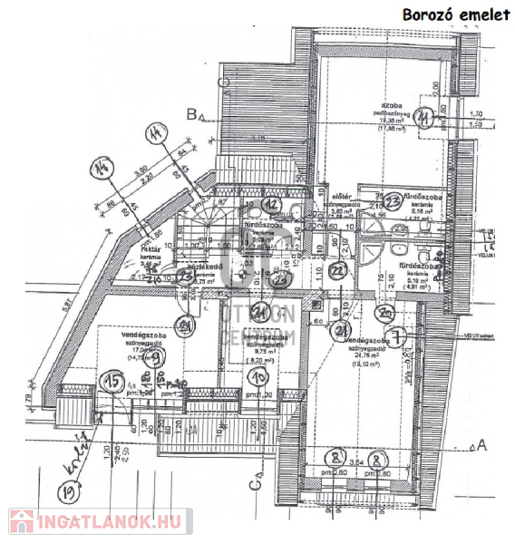
APARTMANOK (emelet):
-4 szoba
-3 fürdőszoba
-20-25 fő elhelyezéséhez

BOROSPINCE (kb. 300 éves, egykor a Papok pincéje)
-160-200 fő befogadására alkalmas
-36 m hosszú „lovagterem” 2 kiszolgáló oldalággal
-2000 hl bor tárolására alkalmas

GRILLTERASZ:
-150-200 fő befogadására
-2009-es építés
-közel 50 nm fedett étkező
-előkészítő konyha, raktárak
-65 nm-en grillező kemencével
-150 nm-en parkoló.

Rendezvényhelyszínnek a lehető legideálisabb, mivel 50 - 200 főig biztosítani tudja akár:
-konferenciák
-üzleti találkozók, továbbképzések
-borkóstolók
-esküvők
-fesztiválok, koncertek
-családi, baráti összejövetelek alkalmával az igényeket.

Többet szeretne tudni és mindezt a helyszínen megtekintené?
Akkor hívjon és előre egyeztetett időpontban mutatom Önnek!

Iroda/üzlethelyiség részletei

Ár: 290 000 000 Ft
Méret: 300 négyzetméter
Azonosító: 10704234
Jelleg: iroda