Eladó családi ház Debrecen 152 500 000 Ft

Leírás

Debrecentől pár perces távolságra, Pallag irányában, új lakópark épül.
A Nagyerdő közvetlen szomszédságában, nyolcholdas területen, 32 családnak nyújt otthont a lakópark.
A telkek nagysága és elhelyezkedése lehetővé teszi, hogy olyan ingatlanok épüljenek, melyek elsődleges célja:
- természetközeliség
- intimitás
- exkluzivitás
- egyediség
- zárt közösség.
A teljesen közművesített telkeket térkövezett belső útról lehet megközelíteni.
Fekvésének köszönhetően további építkezés a lakóparkon túl nem lesz, ezért nem kell tartania a túlzsúfolt lakókörnyezettől.
Pallagon a pár éve működő Nemzetközi Iskola, óvoda, középiskola lehetőséget nyújt gyermekei számára a tanulás és sport igényeinek.

AZ ÉPÍTKEZÉS BEFEJEZŐDÖTT!

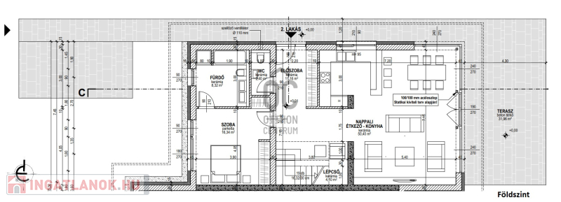
Az ikerházak 2.lakása: 147 nm alapterületű, nagy teraszos, nappali + 3 szobás, 433 nm-es telekrésszel.

Földszint:
- nappali étkezőkonyha kialakítással és kamrával (50 nm)
- dolgozószoba (16 nm)
- fürdőszoba épített tusolóval és káddal (8 nm)
- külön mosdó kézmosóval (4 nm)
- előszoba (11 nm)
- terasz (32 nm)

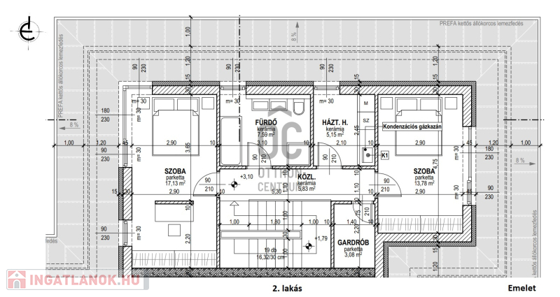
Emelet:
- 2 hálószoba (14, 17 nm)
- fürdőszoba tusolóval és káddal, valamint mosdóval ( 8 nm)
- gardrób (3 nm)
- mosókonyha, gépészet ( 6 nm)
- közlekedő ( 6nm).

Várható átadás: 2025.február.

Illetékmentesség, CSOK-kal kapcsolatos és bankfüggetlen hitelügyintézést banki kollégánk teljeskörűen és ingyen bonyolítja Önnek irodánkban, da akár otthonában is!

Családi ház részletei

Ár: 152 500 000 Ft
Méret: 147 négyzetméter
Azonosító: 11057054
Erkély mérete: 33.00 négyzetméter
Telek: 433 négyzetméter
Ingatlan állapota: Kitűnő
Jelleg: ikerház
Építőanyag: Kérdezzen rá a hirdetőtől »
Fűtés jellege: Cirkó
Egész szobák: 4

Egyéb jellemzők

  • Csatorna
  • Garázs
  • Kábel TV
  • Melléképület
  • Parketta
  • Pince
  • Terasz